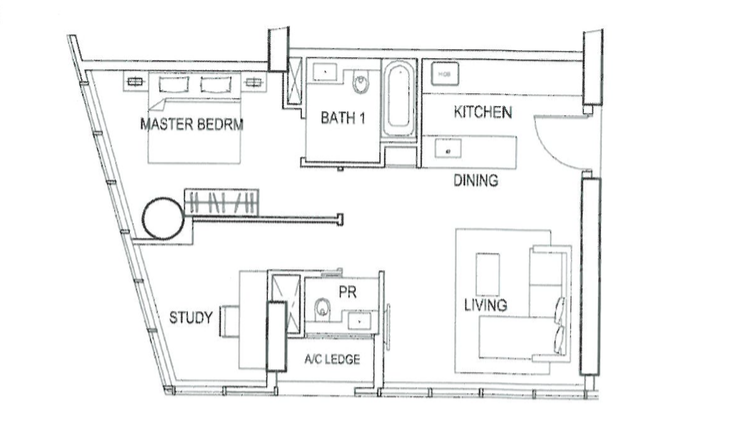
Reflections 1 + Study & 2 + Study
1 + study: 732 - 800 sqft
2 + study: 947 - 1,335 sqft
1 + Study
CARIBBEAN
REFLECTIONS
CORALS
CONTACT US
2 + Study
Keppel Bay Homes
Disclaimer | Terms and Conditions | Copyright